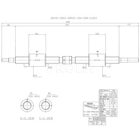
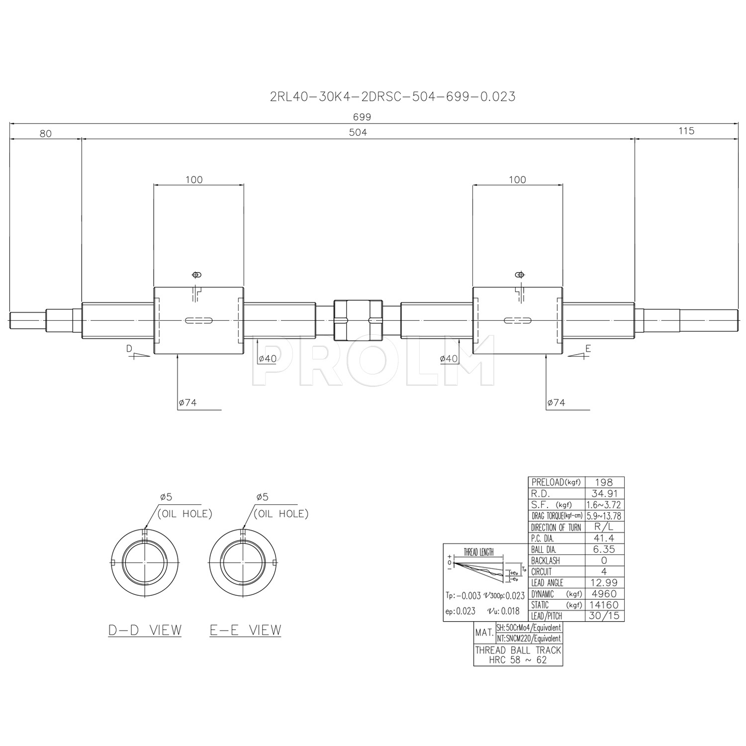
Шариковинтовой привод 2RL40-30K4-2DRSC-504-699-0.023 производства компании HIWIN включает в себя две гайки 2RL40-30K4-DRSC и винт 2RL40-30-0.023 (2RL40-30-504-699-0.023).
Характеристики:
- диаметр винта ШВП - 40 мм;
- шаг - 30 мм.
- динамическая нагрузка на привод - 4960 кгс;
- статическая нагрузка - 14160 кгс;
- предварительный натяг - 198 кгс;
- термическая обработка - закалка ТВЧ;
- твердость дорожек качения - 58-62 HRC.
Дополнительные характеристики элементов шариковинтовой пары:
Гайка 2RL40-30K4-2DRSC:
- количество заходов - 2;
- диаметр шариков - 6.35 мм;
- тип исполнения механизма рециркуляции - K (одноконтурная рециркуляция сквозь тело гайки);
- число циркулирующих контуров - 1;
- число рабочих витков на каждый контур - 4;
- материал гайки - SNCM220 или эквивалентный.
Винт 2RL40-30-0.023 (2RL40-30-504-699-0.023):
- тип резьбы - правосторонний и левосторонний;
- общая длина винта - 699 мм;
- длина резьбовой части - 504 мм;
- точность исполнения - 0.023 мкм на 300 мм хода (класс точности C5);
- материал винта - 50CrMo4 или эквивалентный.
Особенностью ШВП HIWIN 2RL40-30K4-2DRSC-504-699-0.023 является плавность и бесшумность хода, перемещение с высокой точностью и быстродействием.
*Внимание: шариковинтовая передача поставляется в собранном виде! Не рекомендуем свинчивать гайку без съемной втулки, так как это приведет к выпадению шариков.
|
Бренд
|
HIWIN |
|
Номинальный диаметр, мм
|
40 |
|
Тип резьбы
|
2RL (2-х заходная правая или левая) |
|
Шаг резьбы, мм
|
30 |
|
Конструкция гайки
|
K4 |
|
Тип гайки
|
2DRSC |
|
Длина резьбовой части винта, мм
|
504 |
|
Длина, мм
|
699 |
|
Общая длина винта, мм
|
699 |
|
Погрешность перемещения на 300 мм рабочего хода, мм
|
0,023 |
|
Высота, мм
|
74 |
|
Ширина, мм
|
74 |
|
Вес, кг
|
11.5 |