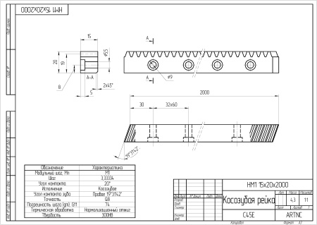
Зубчатая косозубая рейка ARTNC® HM1 15x20 применяется для преобразования вращательного движения в поступательное и наоборот, в зависимости от механизма. Совместима с шестярнями соответствующего модуля.
Характеристики:
- тип зацепления передачи: косозубая реечная;
- профиль зуба: эвольвентный;
- модуль: M1.5;
- угол профиля зуба: 20°;
- количество зубьев рейки: 636 шт;
- шаг зуба: 5,00001 мм;
- материал: углеродистая сталь;
- твердость: 25-30HRC;
- точность: Q8.
Области применения:
- портальные станки с ЧПУ;
- общее машиностроение;
- сварочные роботы;
- модульные системы перемещения;
- подъемные механизмы;
- роботы.
Преимущества:
- невысокая стоимость;
- высокий срок службы за счет упрочнения зубов;
- высокая нагрузочная способность.
|
Бренд
|
ArtNC |
|
Тип зацепления передачи
|
косозубый |
|
Модуль
|
M1 |
|
Сечение
|
15x20 |
|
Класс точности (Q)
|
8 |
|
Термообработка (закалка)
|
нет |
|
Длина, мм
|
2000 |
|
Высота, мм
|
20 |
|
Ширина, мм
|
15 |
|
Вес, кг
|
4.1 |